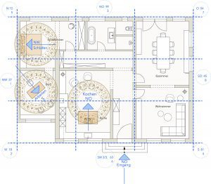
Grundriss-Himmelsrichtung