Architektur im einklang
Impulse, die jetzt zu dringend benötigten Lösungen beitragen. Die mit nachhaltiger Konzeption und Grundrissarbeit, sinnvollen Projekten ein verbindendes Element geben. Eine Kultur, die einen tiefgreifenden Mehrwert für Bauherren und Kunden liefert. Mit Geist und Seele.
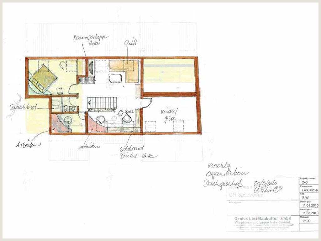
LOFT: Phantasie braucht Platz und Raum
Ein Loft ermöglicht neue Arten des Wohnens, die sich an die Bandbreite der heutigen Lebensentwürfe anpassen lassen. Dieser Loft über zwei Ebenen wurde in seiner Raumfolge neu auf eine junge Familie zugeschnitten. Auf der unteren Ebene befinden sich ein großzügiges Kinderzimmer und das gemeinsame Wohnzimmer sowie Küche und Bad. Der obere Bereich bereitet den Eltern eine Rückzugsmöglichkeit mit Arbeitszimmern, einem Entspannungsbereich sowie dem Schlafzimmer und einem eigenen Bad.
Mensch & Sein
Durch die Integration von westlicher Baukultur und östlicher Philosophie schaffen wir eine Symbiose aus beiden Welten.
Sie finden uns hier:
Herderstraße 32, (Ecke Humboldtstrasse.)
D-40237 Düsseldorf-Zoo
Tel.: +49 211 66 88 609
Fax: +49 211 66 88 607
Bitte vereinbaren Sie einen persönlichen Termin.



